Электрическое оборудование автомобиля опель вектра. К плюсовым источником питания соединяются проводом, а с минусовым - через корпус, массу. Такой метод позволяет уменьшить число проводов и упростить монтаж. На автомобилях устанавливаются малообслуживаемые или необслуживаемые аккумуляторы. Электрическая система имеет 12-тивольтовое питание с отрицательным заземлением и состоит из аккумулятора, генератор, стартера, потребителей электроэнергии и электрических цепей.








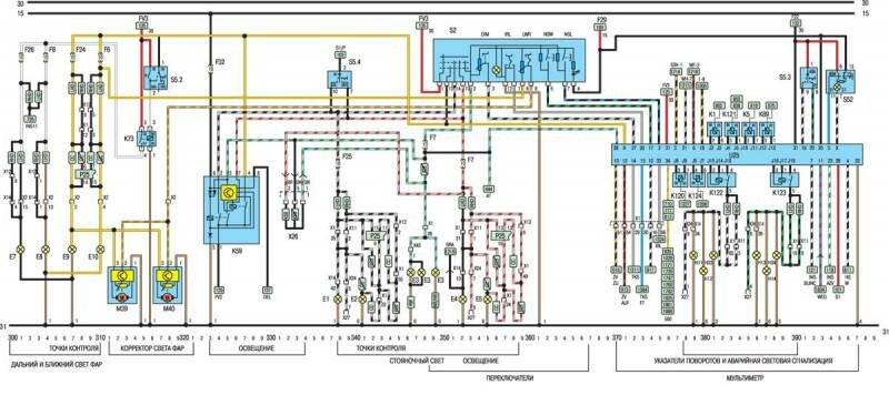
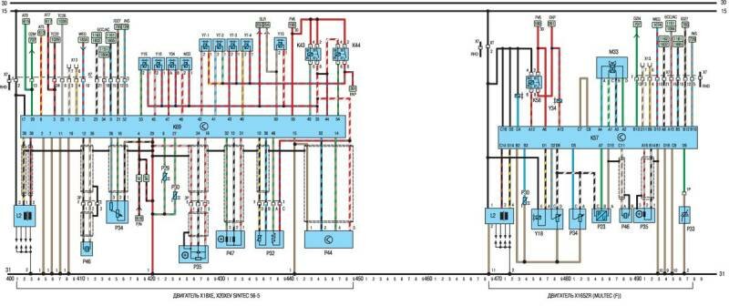
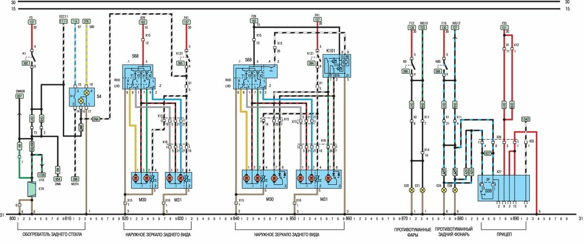
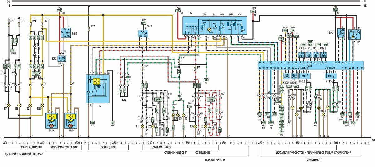
Сокращения на электросхемах, идентификация проводов, цветовой код
AB – воздушная подушка безопасности
ABS – антиблокировочная тормозная система
AC – кондиционирование воздуха
ASP – внешнее зеркало
В – автоматическая трансмиссия
ATC – автоматическое регулирование температуры
AZV – дышло прицепа
BR – бортовой компьютер
CC – круиз-контроль
CD – переключатель компакт-диска
CRC – управление круиз-контроля
D – дизель
DID – двойной информационный дисплей
DIM – регулятор освещенности
DIS – прямая система зажигания
DS – система защиты
DWA – противоугонная система
DZM – тахометр
E – выпуск
ЕЭС – электронный контроль климата
EFC – электрическая крыша (автомобиль типа "кабриолет" с откидным верхом)
EKP – топливный насос
EKS – охрана (окна с электрическим стеклоподъемником)
EMP – радио
ETC – электронный контроль тяги
EUR – двигатель
EZ + – плюс с самодиагностики
EZV – еcotronic
FH – окна с электрическим стеклоподъемником
F – бензин
FT – дверь водителя
FV – плавкий предохранитель
GB – Великобритания
HB – hatchback
HRL – лампа багажного отделения
HS – обогреватель стекла
HSF – вещевой ящик
HW – стеклоочиститель заднего стекла
HZG – обогрев опель вектра
ID – показ информации
IMO – иммобилайзер
INS – инструмент
IRL – подсветка салона
J – Япония
KAT – каталитический конвертер
КБ – жгут проводов
KV – контакт, распределительный элемент
KW – состояние
L3.1 – система впрыска топлива (Bosch L3.1-Jetronic)
LED – светодиод
LCD – LCD инструмент
LHD – левый двигатель
LWR – корректор фар
M1.5 – система впрыска топлива (Bosch Motronic M1.5)
M2.5 – система впрыска топлива (ESOSCH Motronic M2.5)
MID – многофункциональный дисплей
MOT – система впрыска топлива Motronic
MT – механическая коробка передач
MUL – система впрыска топлива (Multec)
MUT – мультитаймер
N – Норвегия
NB – notchback
NSL – задний потивотуманный фонарь
NSW – противотуманная фара
OEL – датчик давления масла
OPT – оборудование, поставляемое по особому заказу
PBSL – стояночный тормоз
P/N – ингибитор стартера
РОТ – потенциометр
RC – контроль поездки
RFS – фонари заднего хода
RHD – правый двигатель
S – Швеция
SA – Саудовская Аравия
SD – скользящий люк
SH – обогрев сидения
SLP – вторичный нагнетатель воздуха
SM – машинный блок управления
SRA – омыватель фар
TANK – датчик уровня топлива
TC – контроль тяги
TD – дизельный двигатель с турбонаддувом
TEL – телефон
TEMP – датчик температуры
TID – тройной показ информации
TFL – управление светом
TKS – выключатель подсветки салона
TSZI – зажигание
V – замок опель вектра
VGS – карбюратор
WEG – счетчик пройденного расстояния
WHR – контроль за уровнем автомобиля
WS – зуммер
ZIG – прикуриватель
ZV – центральное блокирование
ZYL – цилиндр
4WD – привод на 4 колеса Продолжение описания электросхем смотрите здесь.
РЕМОНТ АВТОЭЛЕКТРОНИКИ ЗАРЯДНЫЕ УСТРОЙСТВА ДЛЯ АКБ

|